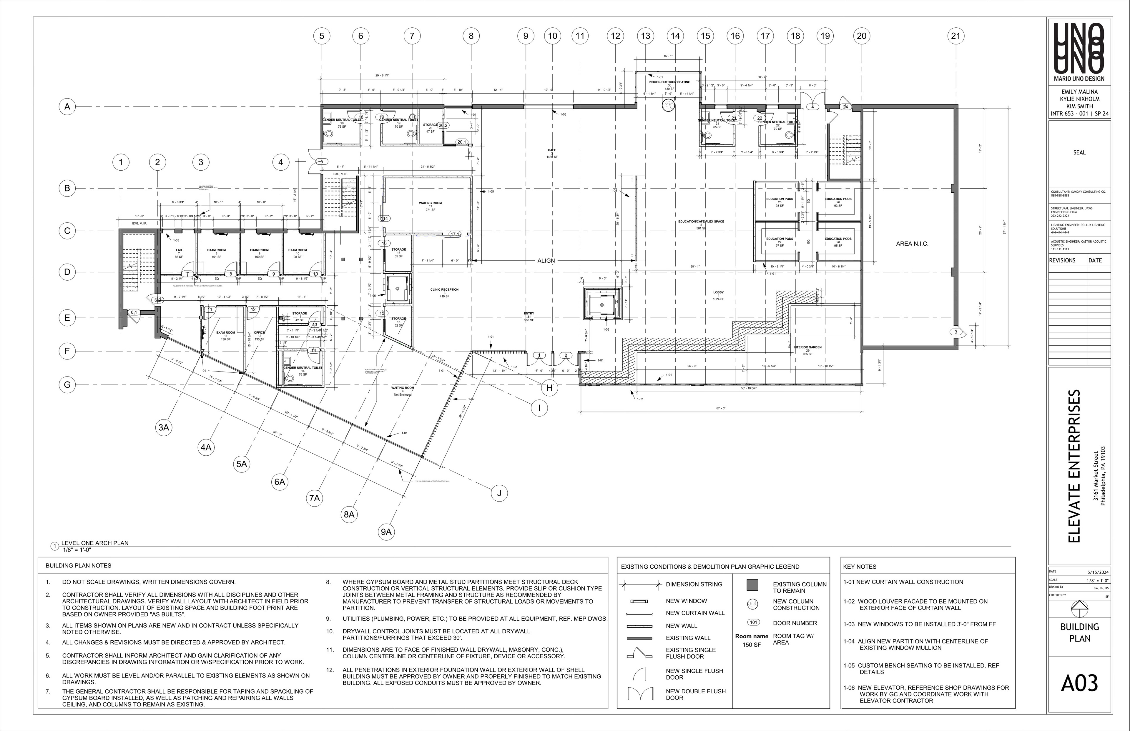
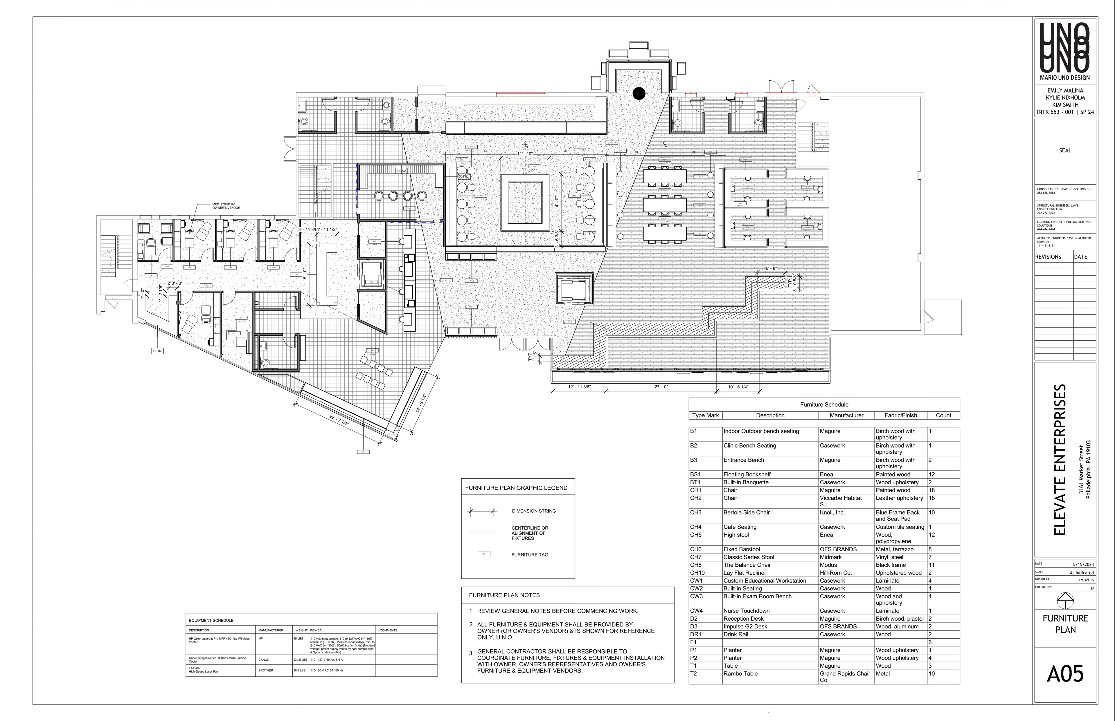
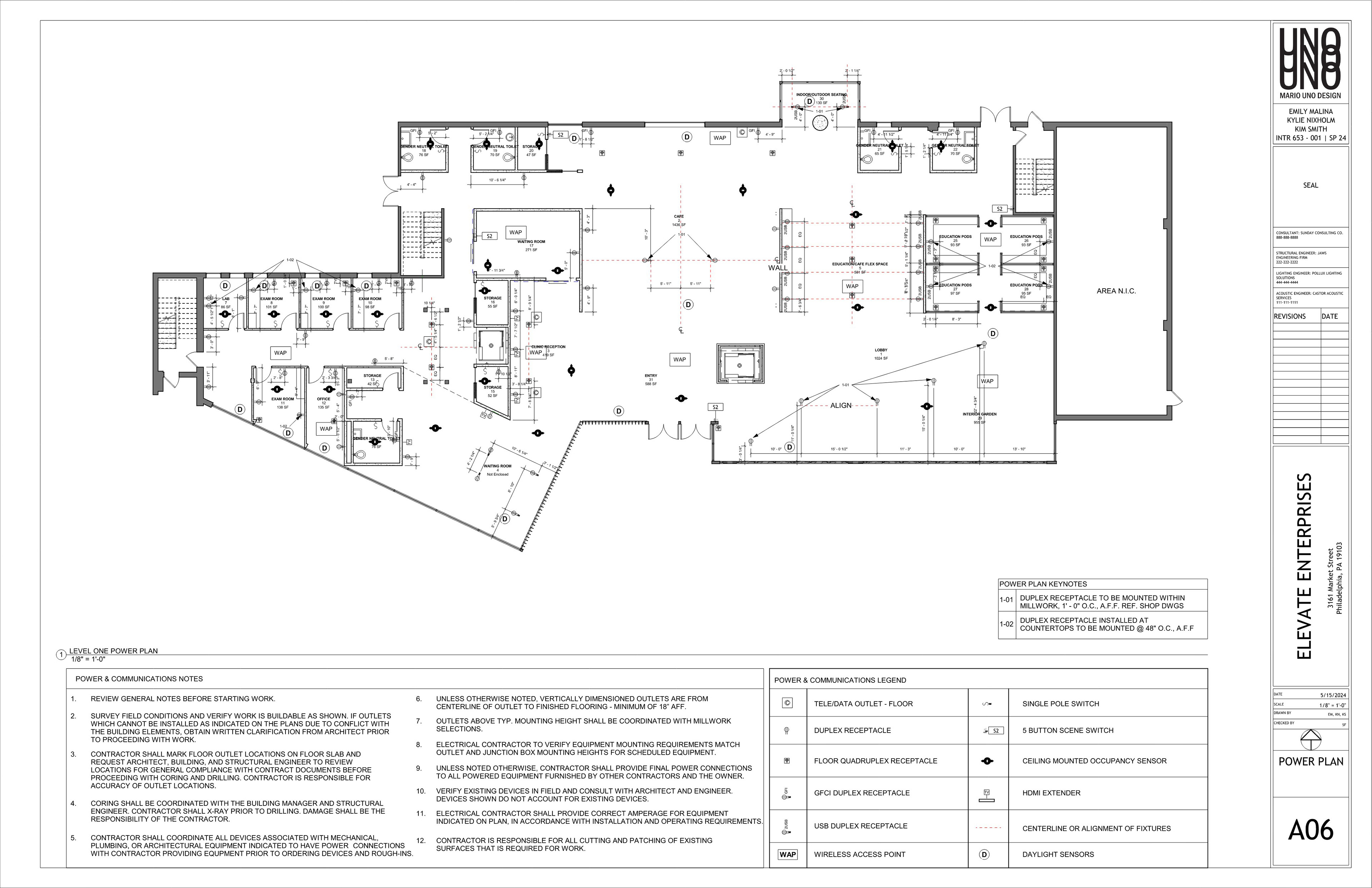
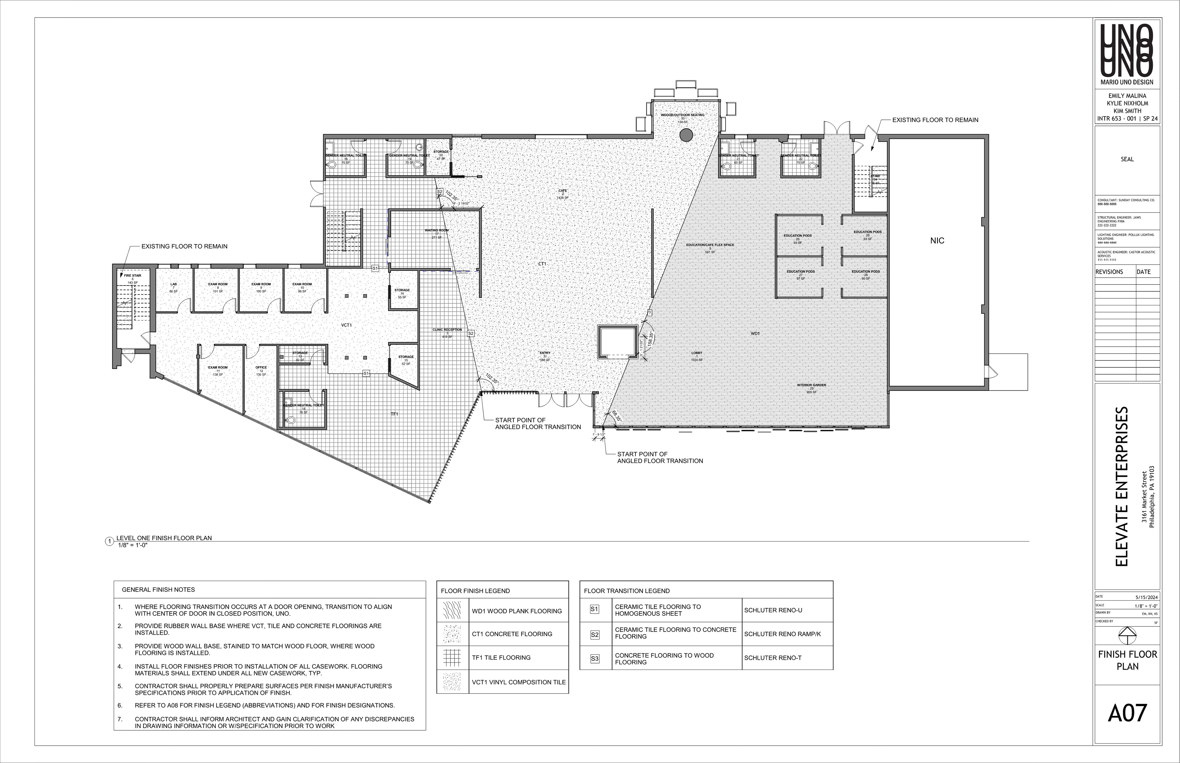
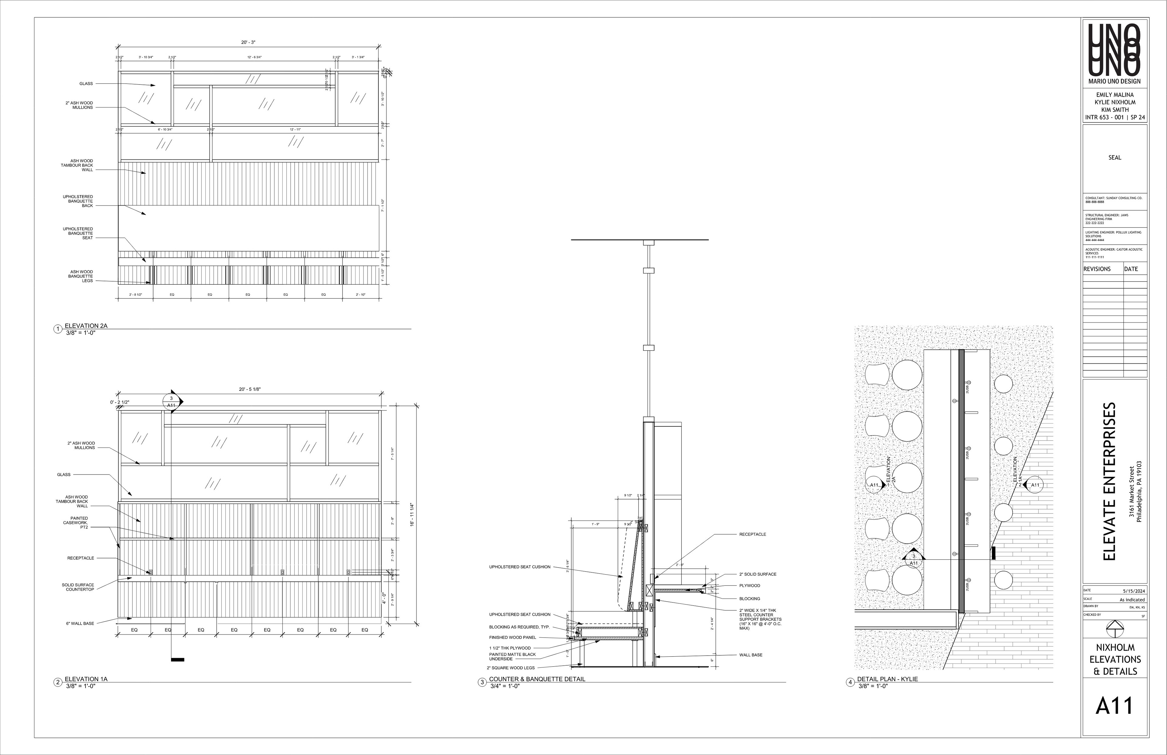
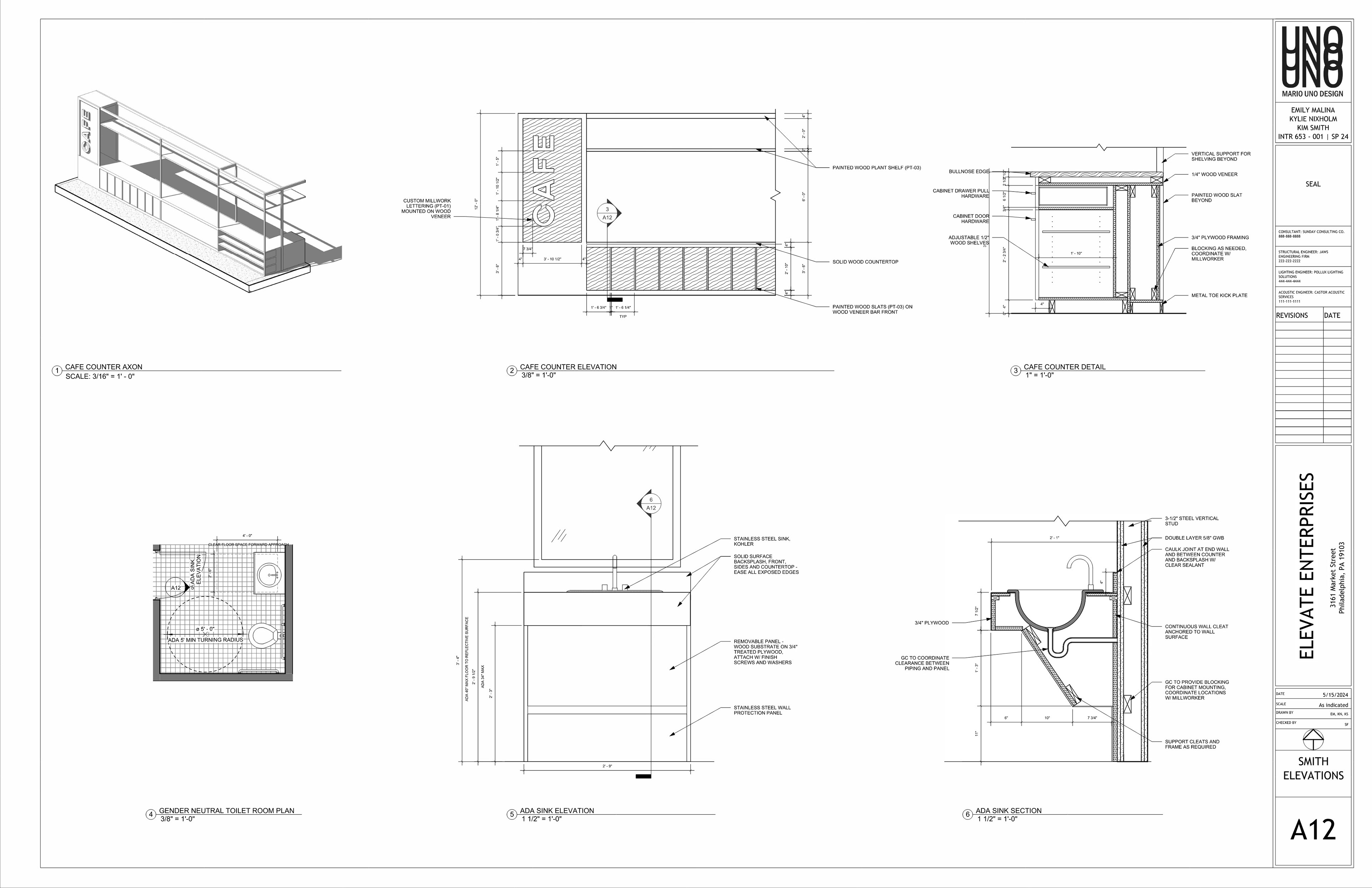
This comprehensive CD set was completed in June 2024 in collaboration with two team members. It represents the culminating project of a course structured as a simulation of a mid-size commercial development, encompassing all phases of the construction process.











